リバーガーデン四天王寺の物件情報・売買仲介はグレース不動産

営業時間/09:30~17:30 定休日/水曜日・火曜日は隔週
06-6314-1700
リバーガーデン四天王寺

大阪市 不動産リバーガーデン四天王寺

大阪府大阪市天王寺区大道2丁目の新築マンション情報はグレース不動産

こちらの物件は現在商談中です。

〔物件ID〕 0000038414
  • 新築マンション
  • 値下げ
12,298 万円
所在地 大阪府大阪市天王寺区大道2丁目
交通 大阪市営谷町線「天王寺」駅 徒歩10分
大阪市営御堂筋線「天王寺」駅徒歩10分
JR大阪環状線「天王寺」駅徒歩10分
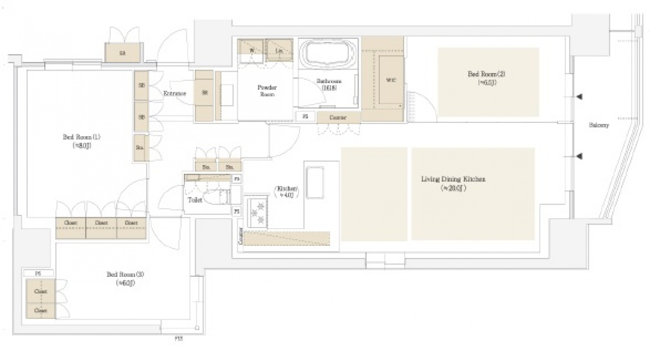
専有面積 94.30m2 (28.52坪)
間取り 3LDK
築年月 2025年08月(令和7年08月)
所在階/階数 12 階 / 20 階
リバーガーデン四天王寺の物件写真
リバーガーデン四天王寺のMAP・周辺環境
リバーガーデン四天王寺の物件概要
所在地 大阪府大阪市天王寺区大道2丁目
交通 大阪市営谷町線「天王寺」駅 徒歩10分
大阪市営御堂筋線「天王寺」駅徒歩10分
JR大阪環状線「天王寺」駅徒歩10分
価格 12,298万円
小学校区---中学校区---
専有面積 94.30m2(28.52坪) 間取り 3LDK
バルコニー面積 7.70m2 バルコニー向き ---
その他面積 ---
構造 RC 所在階/階建 12階/20階
築年月 2025年08月(令和7年08月) 総戸数 200戸
土地権利 所有権 用途地域 二住
管理会社 (株)浪速管理
管理形態 管理会社に全部委託 管理員 常駐
管理費 8,330円 修繕積立金 10,370円
駐車場 --- 駐車場料金 ---
その他使用料 ---
現況 空家 引渡 即時
取引態様 仲介 国土法届出 ---
設備 ---
コメント ---
更新日 2026年05月14日 次回更新予定日 2026年05月28日
価格変更履歴
2026年04月18日

12,500万円

12,298万円

ローンシミュレーション
自己資金 万円
※別途、諸費用が必要です。
ローン借入額 万円
内ボーナス時支払い 万円
※ボーナス返済月の加算額ではありません。
※お借入れ予定額の50%以下の金額をご入力ください。
金利
返済年数
  • 月々(毎月返済額)
  • 0
  • ボーナス(ボーナス時加算額)
  • 0

物件情報と現況に差異がある場合、現況を優先します。
掲載物件は売却済み、売却中止、価格変更となる場合がありますので、予めご了承ください。
仲介物件には所定の仲介手数料(消費税含む)が必要です。

グレース不動産 株式会社
会社名 グレース不動産 株式会社
所在地 〒530-0054
大阪市北区南森町2丁目1-23-2F
交通 大阪市営地下鉄谷町線 南森町駅
TEL 06-6314-1700
FAX 06-6314-1800
ホームページHP https://www.grace-estate.net
メールアドレスE-MAIL info@grace-estate.net
免許番号 大阪府知事(3)第56367号
営業時間 09:30~17:30
定休日 水曜日・火曜日は隔週
物件を探す ×
物件種別
エリア
価格
建物面積
土地面積
専有面積
間取り
駅徒歩
築年数
こだわり条件
無料会員登録で
非公開物件をご覧いただけます
会員登録で
物件数が大幅アップ!

公開物件130

公開物件+
非公開物件
1,570

現在の会員数
121

購入をご希望のお客様
  • 会員登録は無料!
  • 会員専用マイページを作成!
  • 希望条件に合う新着・価格変更物件をメール配信!
  • 非公開物件が閲覧可能!
  • 他社にはない特別限定物件のご紹介チャンスあり!