ローレルタワー梅田の物件情報・売買仲介はグレース不動産

営業時間/09:30~17:30 定休日/水曜日・火曜日は隔週
06-6314-1700
ローレルタワー梅田

大阪市 不動産ローレルタワー梅田

大阪府大阪市北区万歳町の中古マンション情報はグレース不動産

〔物件ID〕 0000039602
  • 中古マンション
  • 値下げ
12,490 万円
所在地 大阪府大阪市北区万歳町
交通 大阪市営谷町線「中崎町」駅 徒歩1分
阪急神戸線「大阪梅田」駅徒歩8分
大阪市営御堂筋線「梅田」駅徒歩10分
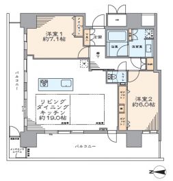
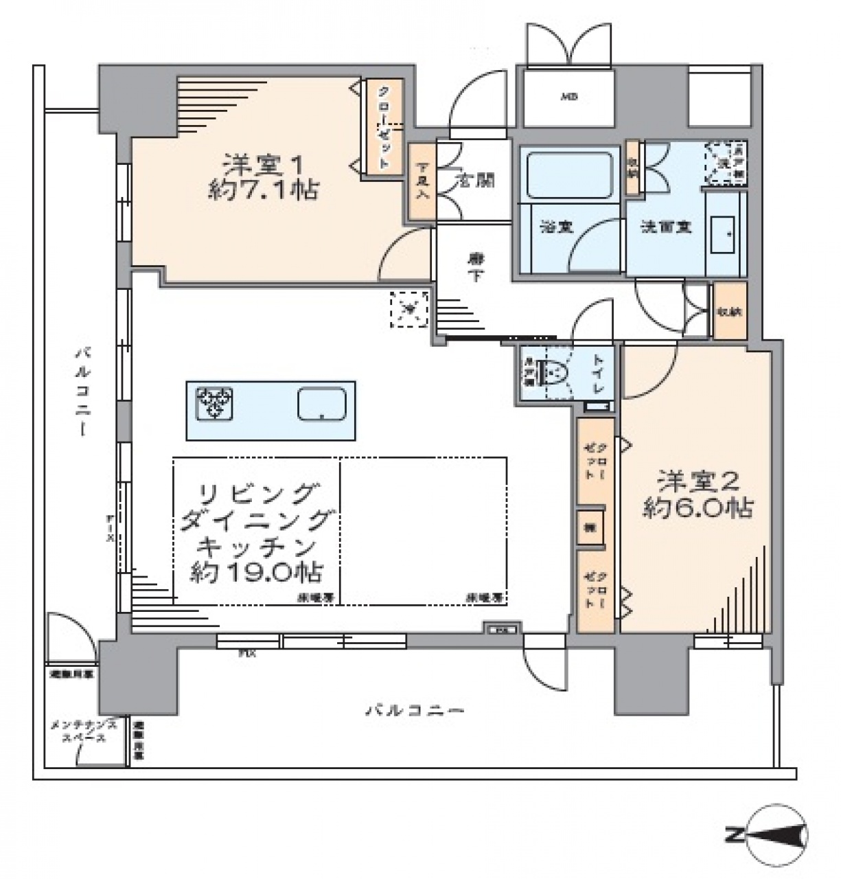
専有面積 71.23m2 (21.54坪)
間取り 2LDK
築年月 2008年06月(平成20年06月)
所在階/階数 16 階 / 38 階
  • ペット可
  • 駅徒歩5分以内
  • タワーマンション
ローレルタワー梅田の物件写真
ローレルタワー梅田のMAP・周辺環境
ローレルタワー梅田の物件概要
所在地 大阪府大阪市北区万歳町
交通 大阪市営谷町線「中崎町」駅 徒歩1分
阪急神戸線「大阪梅田」駅徒歩8分
大阪市営御堂筋線「梅田」駅徒歩10分
価格 12,490万円
小学校区扇町小学校中学校区天満中学校
専有面積 71.23m2(21.54坪) 間取り 2LDK
バルコニー面積 25.53m2 バルコニー向き 北西
その他面積 ---
構造 RC 所在階/階建 16階/38階
築年月 2008年06月(平成20年06月) 総戸数 250戸
土地権利 所有権 用途地域 商業
管理会社 近鉄住宅管理㈱
管理形態 管理会社に全部委託 管理員 日勤
管理費 13,770円 修繕積立金 10,270円
駐車場 空有 駐車場料金 ---
その他使用料 ---
現況 空家 引渡 相談
取引態様 仲介 国土法届出 ---
設備 ---
コメント ---
更新日 2026年04月20日 次回更新予定日 2026年05月04日
価格変更履歴

価格変更履歴については、
担当者にお問い合わせください。

ローンシミュレーション
自己資金 万円
※別途、諸費用が必要です。
ローン借入額 万円
内ボーナス時支払い 万円
※ボーナス返済月の加算額ではありません。
※お借入れ予定額の50%以下の金額をご入力ください。
金利
返済年数
  • 月々(毎月返済額)
  • 0
  • ボーナス(ボーナス時加算額)
  • 0

物件情報と現況に差異がある場合、現況を優先します。
掲載物件は売却済み、売却中止、価格変更となる場合がありますので、予めご了承ください。
仲介物件には所定の仲介手数料(消費税含む)が必要です。

グレース不動産 株式会社
会社名 グレース不動産 株式会社
所在地 〒530-0054
大阪市北区南森町2丁目1-23-2F
交通 大阪市営地下鉄谷町線 南森町駅
TEL 06-6314-1700
FAX 06-6314-1800
ホームページHP https://www.grace-estate.net
メールアドレスE-MAIL info@grace-estate.net
免許番号 大阪府知事(3)第56367号
営業時間 09:30~17:30
定休日 水曜日・火曜日は隔週
物件を探す ×
物件種別
エリア
価格
建物面積
土地面積
専有面積
間取り
駅徒歩
築年数
こだわり条件
無料会員登録で
非公開物件をご覧いただけます
会員登録で
物件数が大幅アップ!

公開物件122

公開物件+
非公開物件
1,473

現在の会員数
120

購入をご希望のお客様
  • 会員登録は無料!
  • 会員専用マイページを作成!
  • 希望条件に合う新着・価格変更物件をメール配信!
  • 非公開物件が閲覧可能!
  • 他社にはない特別限定物件のご紹介チャンスあり!